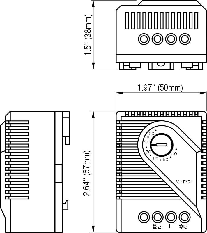
Mechanical hygrostat
MFR 012
The hygrostat is used to prevent condensate and regulates heating and fans. From a critical relative humidity of 65 %, the temperature is increased so that the relative air humidity decreases and condensate is prevented from forming.
- Adjustable relative air humidity
- Changeover contact (heating or cooling)
- High switching capacity
- Clip mounting



